聚焦公司动态,解读选矿知识,剖析行业热点,分享选矿经验,我们将冰球突破动态及时呈现给您。在这里,您可以更深入、更全面地了解冰球突破矿装。
2015-10-10 来源:冰球突破矿装 (14185次浏览)
球磨机是一种常见的磨粉设备,在选矿厂中应用较频繁,此外,还广泛用于电力、化工、水泥等加工部门。由于球磨机的类型不同,其原理也有所区别,下面我们了解不同类型的球磨机工作原理情况。

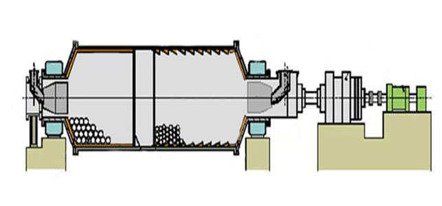
球磨机是由一个大圆长筒及其他部件构成的设备,其内部结构复杂,组成部分较多,主要包括筒体、端盖、轴承、以及传动部件等,其中,球磨机的传动部件有三角带、电机、减速机、皮带轮几部分。

筒体:筒体由一定厚度的钢板制成的圆筒形筒体,筒体内装有耐磨衬板,以保护球磨机筒体在磨矿过程中不被钢球及物料快速磨损。为了保障球磨机的磨矿效率,需根据磨矿试验,确定球磨机筒体内装入的钢球量,一般情况下,筒体内钢球的装入范围约占球磨机筒体容积的25%-50%之间,钢球直径范围在25-150mm。
端盖:球磨机的端盖位于筒体的两端,通过螺丝与筒体底部的法兰连接起来,中部有小孔,保证了废气的顺利排出。
其他部件:轴承支撑着中空轴径,有效减小了筒体间的摩擦,延长了筒体的人使用寿命。大齿轮圈固定在筒体上。
单仓型球磨机,筒体内只有一仓,由滚动轴承座支撑,通过传动电机带动球磨机筒体旋转,物料从给料口给入,进入球磨机筒体,与钢球一起随筒体旋转,完成抛落、冲击、撞击和自磨工作,在不断给入物料的前提下,给料压力会促使筒体内物料逐渐向排矿处移动,当矿浆高出排矿的中空轴下边缘时,合格物料会自动溢出,完成磨矿作业,未合格的物料会由反螺旋叶返回至球磨机筒体内,再次进行磨碎作业。

两仓型球磨机是筒体内有两仓(或多仓),物料会通过给料口进入球磨机的初始仓,在筒体旋转的作用下,钢球会在筒体旋转的作用力和反向作用力的影响下做匀速的直线运动,另外,钢球会与筒体产生一定的摩擦力,钢球随筒体轴心作公转运动,使它帖附近筒体衬板上被筒体带走,当上升至一定高度时后,介质由于自重而呈抛物线落下或泄落而下从而将筒体内的物料磨碎。
当物料在初始仓内完成粗磨后,会自动转入第二仓内,该仓的摩擦力、研磨力相对较小,能够将粗磨后的物料磨矿更碎、更细,当达到物料粒度要求时,由球磨机排矿处卸料箅板排出物料。

干式球磨机的工作时与湿式球磨机不同,待物料进入球磨机筒体后,经过钢球、物料、筒体三相间的冲击、撞击、摩擦的作用下,实现研磨作业,另外,干式球磨机管路系统中还装有除尘器、风机进口、选粉机,当风力系统处于工作状态时,球磨机的机体内部气压也随之降至,最终达到低负压状态。当磨细的物料随着磨机的转动成松散状,并随着风力从出料口进入管道系统,由选粉器将粗颗粒分离后再送入球磨机进口,细粉由分离器分离回收,气体由风机排入大气。
球磨机钢球是磨矿的主要“工具”,筒体内钢球的填充率达到40%-50%时,球磨机的回转速度会出现三种变化:

球磨机钢球的转速较高,在机身离心力的作用下,钢球会连同筒身一起做旋转运动,即匀速圆周运动,此时研磨介质无法有效发挥其研磨和冲击作用,研磨效果较差。

球磨机的转速较为平稳,磨介在随筒体上升至一定高度后,就会以匀速下落状态落回筒内,研磨作用较充分,有效降低了产品的粒度,磨粒处理能力较高。

泄落状态是球磨机筒体转速较慢,筒体内钢球与物料的摩擦力较小,研磨作用不明显,所以磨矿效果受限。
以上是常规球磨机、两仓球磨机、干式球磨机及球磨机钢球的工作原理及特点介绍,希望能帮助大家更加了解球磨机设备。
内容版权归冰球突破矿装所有
未经许可不可擅自使用如需转载文章
请联系我们授权
侵权必究!
冰球突破矿装从1993年创始至今,一直致力于为客户提供高效节能的设备。其生产的高效深锥浓缩机主要用于选矿厂精矿和尾矿的高浓度浓缩。在环保、化工、冶金等其他领域也可以用于细颗粒,小密度料浆的浓缩处理。下面对高效深锥浓缩机的工作原理进行简单介绍。
球磨机原理是利用装有介质球的筒体在电机和传动装置的带动下,发生旋转,驱动内部磨矿介质钢球进行旋转、抛落,利用钢球的抛落产生的冲击力和旋转的磨削作用,对矿物进行破碎。在球磨机中磨矿介质的运动状态,和本身的尺寸大小,材料构成,磨机转速都有关系...

您可以在下面表格填写您的需求信息,我们的技术与销售人员会尽快与您取得联系。为保证能及时处理您的信息,请务必准确填写您的联系电话!