>
冰球突破振动筛设备振幅大,筛分效率高;
可提供耐磨橡胶筛网,寿命是钢制的10-20倍,是聚氨脂的4-6倍;
可提供高弹性的耐磨橡胶弹簧,寿命长、噪音小、维修方便;提供座式和吊式两种形式的振动筛;
大皮带轮与偏心轴有3-5mm偏心量,平衡了振动筛振动时大皮带轮的整体运动,增加了传动的稳定性;
自定中心振动筛的筛上物料在振动作用下能达到很好的松散和分层;
该振动筛的配重质量大小可以调节,可根据生产要求调节筛子振幅大小;
当给矿量发生变化时,振幅也变化。给矿量少时振幅加大振动加剧,给矿量多时振幅变小。给矿量的变化将影响"动力平衡",从而使皮带轮中心产生一些振动;
适用于中、细粒筛分而不适应粗物料筛分。
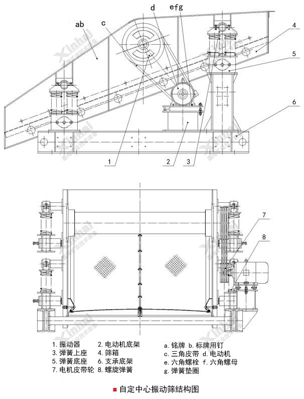
自定中心振动筛原理是利用电机带动皮带轮的主轴承时,所产生的离心惯性力加在筛箱振动系统的内力、带动筛箱系统的重心做圆运动。偏重轮上偏心重块的质量,应该保证它们所产生的离心惯性力能够平衡筛箱旋转时所产生的离心惯性力。使皮带轮中心在空间不发生位移的条件是筛箱旋转产生的离心惯性与偏心重块产生的离心惯性力大小相等,方向相反,此时达到动力平衡。 从而实现皮带轮"自定中心",使得大小两皮带轮的中心距保持不变,消除了皮带时松时紧的现象。
| 型号 | 规格 | 上限给料粒度 (mm) | 处理能力 (t/h) | 电机型号 | 电机功率 (kW) | 重量 (kg) | 备注 |
|---|---|---|---|---|---|---|---|
| SZZ0918 | 900×1800 | 40 | 20~25 | Y100L1-4 | 2.2 | 420 | 吊式 |
| SZZ0918 | 900×1800 | 40 | 10~30 | Y100L1-4 | 2.2 | 553 | 座式 |
| 2SZZ0918 | 900×1800 | 40 | 20~40 | Y100L1-4 | 2.2 | 570 | 座式 |
| SZZ1225 | 1250X2500 | 100 | 100 | Y132S-4 | 5.5 | 1017 | 吊式 |
| SZZ1225 | 1250X2500 | 100 | 100 | Y132S-4 | 5.5 | 1466 | 座式 |
| 2SZZ1225 | 1250X2500 | 100 | 100~150 | Y132S-4 | 5.5 | 1320 | 吊式 |
| 2SZZ1225 | 1250X2500 | 100 | 100~150 | Y132S-4 | 5.5 | 1870 | 座式 |
| SZZ1530 | 1500×3000 | 100 | 90~200 | Y132M-4 | 7.5 | 1850 | 吊式 |
| SZZ1530 | 1500×3000 | 100 | 90~200 | Y132M-4 | 7.5 | 2665 | 座式 |
| 2SZZ1530 | 1500×3000 | 100 | 90~200 | Y132M-4 | 7.5 | 2963 | 吊式 |
| SZZ1540 | 1500×4000 | 100 | 90~200 | Y160L-4 | 15 | 2865 | 座式 |
| 2SZZ1540 | 1500×4000 | 400 | 90~200 | Y160L-4 | 15 | 3412 | 座式 |
| SZZ1836 | 1800×3600 | 150 | 100~300 | Y160M-4 | 11 | 4500 | 吊式 |
| 2SZZ1836 | 1800×3600 | 150 | 100~300 | Y180M-4 | 18.5 | 5616 | 座式 |
云南某选矿厂,物料含水较大,设备损耗严重、生产无法进行而增加洗矿设施,进行细碎前的洗矿脱泥。冰球突破筛分机厂家用的自定义中心振动筛因偏心轴会产生较大的离心力,同时可衬湿式耐磨橡胶增加设备使用寿命,另外增加两台用于脱泥。矿石经过振动筛两段的洗矿脱泥,筛分效率提高,大大保证了选前工作的正常运行,同时也降低了生产成本。

您可以在下面表格填写您的需求信息,我们的技术与销售人员会尽快与您取得联系。为保证能及时处理您的信息,请务必准确填写您的联系电话!