聚焦公司动态,解读选矿知识,剖析行业热点,分享选矿经验,我们将冰球突破动态及时呈现给您。在这里,您可以更深入、更全面地了解冰球突破矿装。
2016-03-16 来源:冰球突破矿装 (13830次浏览)
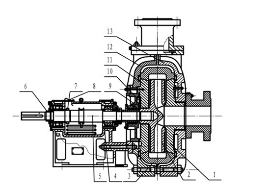
目前渣浆泵的使用范围越来越广,输送的颗粒粒度越来越大,毒性也越来越强,对渣浆泵密封的腐蚀和磨损也越来越严重,这就要求渣浆泵的各个配件耐磨耐腐蚀性能要好,冰球突破渣浆泵生产厂家为您提供渣浆泵的结构图帮您了解下渣浆泵配件名称。

如图所示,各个数字所代表的渣浆泵配件名称如下:数字1为前护板,数字2为叶轮,数字3为护套。数字4为托架体,数字5为轴,数字6为螺母乙,数字7为调整螺母甲,数字8为调整孔盖,数字9为减压盖,数字10为付叶伦,数字11为后护板,数字12为泵体,数字13为泵盖,其中数字2和12所代表的叶轮和泵体是渣浆泵重要的配件,对运输工作的运行发挥着至关重要的作用。在电动机的作用下,叶轮高速旋转,同时带动叶片旋转将固液混合物甩出,以完成山西渣浆泵的压水过程。在这过程中叶轮速度大,产生较大的离心力,以使叶轮上的叶片发挥主要作用。为减少摩擦损失,要求叶轮的内外表面光滑。泵体又称为渣浆泵的外壳,与叶轮一样是水泵的主要配件,对整个机体起到支撑作用。
生产渣浆泵配件厂家众多,其中冰球突破矿山企业是在配件生产技术先进的厂家之一,可根据客户的要求进行量身定做。冰球突破渣浆泵配件厂家是注重产品的优化与改进,其生产的渣浆泵配件质量有保证。
内容版权归冰球突破矿装所有
未经许可不可擅自使用如需转载文章
请联系我们授权
侵权必究!
渣浆泵可用于磨蚀性和含有固体颗粒的浆体输送,其使用范围广。为更好地发挥输送性能,渣浆泵小配件的作用就不可忽视,现在介绍一下冰球突破矿装集团生产的渣浆泵小配件。

您可以在下面表格填写您的需求信息,我们的技术与销售人员会尽快与您取得联系。为保证能及时处理您的信息,请务必准确填写您的联系电话!