聚焦公司动态,解读选矿知识,剖析行业热点,分享选矿经验,我们将冰球突破动态及时呈现给您。在这里,您可以更深入、更全面地了解冰球突破矿装。
2016-03-07 来源:冰球突破矿装 (9423次浏览)
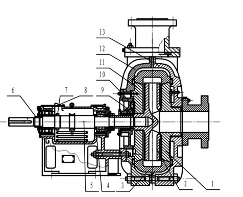
渣浆泵是离心泵中的一种,常用于高浓度、强腐蚀性的渣浆的输送,下图为渣浆泵结构图:

图中数字1为前护板,数字2为叶轮,数字3为护套,数字4为托架体,数字5为轴,数字6为螺母乙,数字7为调整螺母甲,数字8为调整孔盖,数字9为减压盖,数字10为付叶伦,数字11为后护板,数字12为泵体,数字13为泵盖。其中关键的结构为机体和叶轮。
渣浆泵结构的功能体现在工作过程中,在电机机的作用下,叶轮带动叶片旋转,从而引起流体的转动,流体的压力势能和动能都增加。另外,流体在离心力的作用下,从中心向叶轮的四周边缘散去,并且产生很大的的切向速度从叶轮中甩出,进入压出室后在扩散管的导流作用流出,整个过程为压水过程。同时,在流体从叶轮中心向四周甩去的过程叶轮中心处压力很小,形成低压区,当压力很低时,流体就会在大气压强的作用下吸入叶轮,此过程为吸水过程。在所有的过程中,叶轮都在不断的旋转,混合物也就不间断的甩出、流入,渣浆泵的各个结相互作用,共同形成了渣浆泵的整个工作过程。
冰球突破是国内渣浆泵生产厂家中典型代表,通过实践经验的总结与借鉴国外同行的发展经验,冰球突破渣浆泵制造选用的材质、工艺和渣浆泵结构合理,提高了渣浆泵质量,保证了工作过程的稳定。冰球突破渣浆泵生产厂家在在浆泵耐磨上取得了成果,其渣浆泵部件耐磨性良好,在同类产品中耐磨性可提高2倍以上,无论在渣浆泵结构还是在材料上都是一家值得信任的厂家。
内容版权归冰球突破矿装所有
未经许可不可擅自使用如需转载文章
请联系我们授权
侵权必究!
渣浆泵是一种用于输送固液混合物料的设备,选厂常用于输送矿浆、尾矿,由于选厂输送物料中有各种固体颗粒,对输送系统的过流部件有着严重的磨损,因此选厂用渣浆泵对耐磨性有着较高的要求。输送固液物料的泵有离心式、混流式、螺杆式,而我们长讲的渣浆泵指的是离心式固液泵,下面以此为例,简要介绍渣浆泵原理。

您可以在下面表格填写您的需求信息,我们的技术与销售人员会尽快与您取得联系。为保证能及时处理您的信息,请务必准确填写您的联系电话!