聚焦公司动态,解读选矿知识,剖析行业热点,分享选矿经验,我们将冰球突破动态及时呈现给您。在这里,您可以更深入、更全面地了解冰球突破矿装。
2022-10-24 来源:冰球突破矿装 (2265次浏览)
河北承德有着独特的历史遗迹,蕴含深厚的文化底蕴,是一座历史文化名城;同时承德也是一座蕴藏着丰富矿产资源的城市,拥有钒、钛、铁、钼、银、铅、金等各类金属矿产资源以及萤石、磷矿等非金属矿产资源。近日,冰球突破矿装承接的2000TPD铁精矿脱硫选厂成功建造完毕。从项目前期到选矿方案流程确定、最终选厂项目落地,冰球突破矿装全程秉持客户为先的服务态度,坚持“您需要的正是我们能做到的”服务理念,助力客户建成高质量选厂项目。
2020年底,该项目客户联系到冰球突破矿装,向冰球突破矿装寻求技术支持,表示其项目生产的铁精矿中硫含量较高,难以满足后续使用需求,希望能通过新的工艺方案获得更合格的铁精矿产品。在对项目信息进行初步了解以后,冰球突破矿装为客户提供了大致的技术方案和报价,客户对此十分满意,与冰球突破矿装签订了后续的项目合同。

原矿性质:该项目原矿主要为铁精粉,铁品位约为63.5%,硫品位约为0.37%。
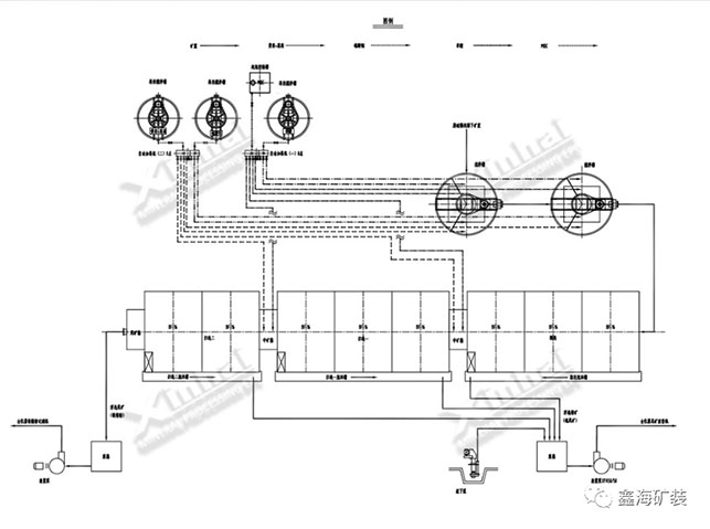
工艺流程:一粗二扫的浮选工艺流程
主要设备:BF浮选机、药剂搅拌槽、耐磨渣浆泵、自动加药机等。
根据客户寄来的试验样品,冰球突破矿装进行了试验样品的制备,得到试验样、筛析样和化验样三部分样品,并且模拟项目现场原有的工艺流程制备铁精矿,以保持浮选原矿的稳定均匀的铁品位和硫品位。经过化验分析和筛析试验可知,该项目原矿中硫矿物分布均匀,且降低硫品位为主要目的。经过多组试验对比分析,冰球突破矿装为该项目提出了适宜的工艺方案及药剂制度,采用一粗二扫的浮选作业,使用黄药和黑药为混合捕收剂浮选硫矿物,使用硫酸铜和草酸为组合活化剂,既可有效降低药剂成本,又能保证精矿除硫效果。

在确定工艺流程以后,冰球突破矿山设计院根据客户提供的现场实际情况,为该项目进行统筹全面的规划,开展了量身定制的施工图设计,对各类设备及管道线路进行合理布局。

为了让设备符合工艺流程需求,冰球突破矿装对所选设备进行定制化的调整和改造,量身定制该项目浮选生产线的主辅设备,以降低设备能耗,提高设备产率,延长设备稳定运转时间。
该项目相关设备完成制造与采购以后,冰球突破矿装委派经验丰富的包装发运组负责项目包装发运流程,使用编号和说明书管理系统确保设备及备件齐全,根据现场安装需求和运输需要分类包装,保障设备安全无虞。

随着项目设备运抵,冰球突破矿装委派了经验丰富的安装调试团队前往项目现场,协助开展项目的安装调试工作。在半个月内,安装调试团队完成了全部设备的安装工作,并通过工艺指标调试,正式投入运营,以实际行动向客户诠释了冰球突破矿装的效率和专业。

自投产至今,该项目运行稳定,设备质量可靠。在完成工艺指标调试后,铁精粉中硫品位降低至0.15%以下,客户对此十分满意。此外,在项目进展期间,冰球突破矿装团队展现出的专业技术、敬业态度以及责任感也给客户留下了深刻的印象。
为保证选厂在投产后能够获得持续稳定的生产指标,从选矿试验起,冰球突破矿装便立足项目实际生产情况,用客户寄来的选厂原矿模拟实际工艺流程进行指标试验,为选厂长期生产保驾护航。
从项目签订到选厂投入运营仅花费不到半年时间,期间试验、设计、生产、安装调试等各环节环环相扣,有序串联,实现了“冰球突破速度”的又一次突破。
该项目预期精矿中硫品位需降低至0.2%以下,在冰球突破矿装技术团队的专业指导下,实际生产中铁精粉硫品位可降低至0.15%以下,甚至可达到0.065%,大大超出了项目预期指标。
河北2000TPD铁精矿脱硫选厂项目的落成是冰球突破矿装获得的又一枚勋章。作为“矿业全产业链服务(EPC+M+O)”的提出者和践行者,冰球突破矿装始终以客户需求为导向,为客户提供科学、的定制化选厂服务方案。未来,冰球突破矿装将继续以传播正确的矿山建设观念和方法为己任,推进冰球突破方案的落地,切实为全球客户提供更加完善、专业、到位的矿业全产业链服务(EPC+M+O)!
内容版权归冰球突破矿装所有
未经许可不可擅自使用如需转载文章
请联系我们授权
侵权必究!
钛是我国重要的战略资源,它可称为“现代工业之母”,因其特殊的物化性质,被广泛用于航天航空、航海、化工、核电及日常生活等领域。钛主要的来源主要以钛铁矿为主,而国内钛铁矿储量大且产地集中适合于规模开采,但脉石较多可选性较差,综合利用率低,因此可通过开发低品位细粒钛铁来提高钛资源的综合利用率。目前,微细粒钛铁矿主要以浮选法为主,下面小编从微细粒钛铁矿浮选方法及药剂两方面进行介绍!
全球服务,保障生产!冰球突破项目,安全运行!二十五年来,冰球突破矿装足迹延伸6个大洲,全球90+国家和地区,冰球突破矿装承接的各类矿山项目,选矿现场日夜运转中……我们用一个个高质高效的项目成果,不断证明冰球突破的品牌与实力!下面跟随小编一起感受冰球突破各大项目现场的魅力吧!

您可以在下面表格填写您的需求信息,我们的技术与销售人员会尽快与您取得联系。为保证能及时处理您的信息,请务必准确填写您的联系电话!